Der Verein Pro Meißen e. V. gestaltet den „in die Jahre gekommenen“ Schulhof komplett um.
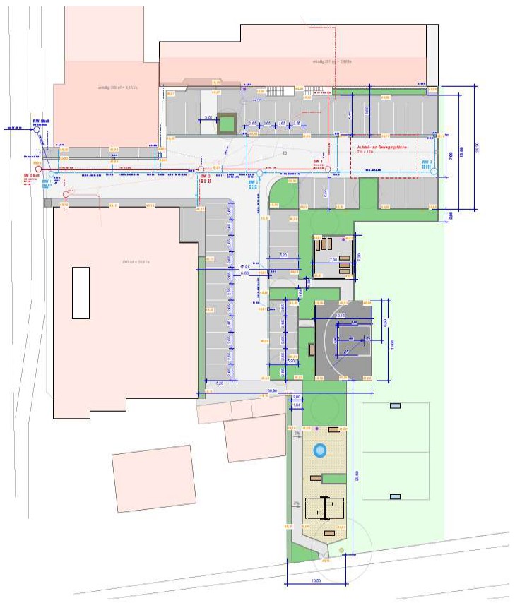
Der alte Asphalt war brüchig und voller Löcher. Der vorhandene Kanalanschluss ist so marode, dass er erneuert werden muss.
Wir werden nach der Umgestaltung mehr Parkfläche und mehr Grünanlagen haben.
Eine gemütliche Sitzecke mit Tisch und Bänken lädt zum Verweilen ein.
Für Kinder und Jugendliche wird es eine Schaukel, einen Drehteller und eine Basketball-Anlage geben.
Die Investitionen liegen bei € 450.000. Das Land gibt uns € 250.000, die Stadt € 150.000 und der Verein beteiligt sich mit € 50.000.
Wir glauben, es wird eine sehr schöne, für das Dorf wichtige Anlage entstehen.
